New open Hotel Jungle fun fun J4 USJ 8minutes nishikujyo 3minutes - Osaka
Discover authentic Japan. Traditional and modern accommodations nationwide. Luxury ryokan with private onsen hot springs, family-run minshuku guesthouses offering local hospitality, spiritual temple shukubo stays with Buddhist vegetarian cuisine, space-saving capsule hotels in urban centers, or western-style business hotels. Explore iconic destinations including Tokyo's Imperial Palace, Kyoto's Fushimi Inari Shrine with its thousand vermilion gates, Osaka Castle and majestic Mount Fuji. Book now
New open Hotel Jungle fun fun J4 USJ 8minutes nishikujyo 3minutes
Osaka 西九条1−15−1
WiFi
Spa/wellness
We speak
JA
9.4/10
WiFi
Spa/wellness
We speak
JA
9.4/10
Situated in Osaka, 1.9 km from Tenjinsha Shrine and 1.9 km from Wiste Mall, New open Hotel Jungle fun fun J4 USJ 8minutes nishikujyo 3minutes offers air conditioning. The property is around 2.3 km from Nankeiji Temple, 2.3 km from Saizen-ji Temple and 2.4 km from Shimo-fukushima Park. Featuring free WiFi throughout the property, the non-smoking apartment features a hot tub.
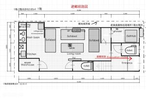
The spacious apartment with a balcony and city views has 2 bedrooms, a living room, a flat-screen TV, an equipped kitchen with an oven and a microwave, and 1 bathroom with a hot tub. Towels and bed linen are offered in the apartment. The property offers quiet street views.
Ikasuri Shrine is 2.5 km from the apartment, while Tsunami and Storm Surge Disaster Prevention Station is 2.5 km from the property. Itami Airport is 18 km away.
The hotel day starts from hour 16:00 and ends at 11:00.
This property will not accommodate hen, stag or similar parties.
Please inform in advance of your expected arrival time. You can use the Special Requests box when booking, or contact the property directly with the contact details provided in your confirmation.
Two-Bedroom Apartment. The hot tub is the standout feature of this apartment. This spacious apartment includes 1 living room, 2 separate bedrooms and 1 bathroom with a bath and free toiletries. Guests can make meals in the kitchen that has a stovetop, a refrigerator, kitchenware and an oven. The air-conditioned apartment offers a flat-screen TV with streaming services, a washing machine, a tea and coffee maker, a sofa as well as city views. The unit has 15 beds.
License number: 大阪市司令大保観環第24-873号
Air conditioning
Guest accommodation sealed after cleaning
Guests have the option to cancel any cleaning services for their accommodation during their stay
Internet services
Non-smoking rooms
Screens or physical barriers placed between staff and guests in appropriate areas
All plates, cutlery, glasses and other tableware have been sanitized
Use of cleaning chemicals that are effective against Coronavirus
WiFi
Guest accommodation is disinfected between stays
Linens, towels and laundry washed in accordance with local authority guidelines
Free WiFi
WiFi available in all areas
Cashless payment available
Hand sanitizer in guest accommodation and key areas
Contactless check-in/check-out
Property is cleaned by professional cleaning companies
Non-smoking throughout
Physical distancing rules followed
Staff follow all safety protocols as directed by local authorities
Hot tub/Jacuzzi
