Murao Building 3F, 4F - Vacation STAY 51102v - Takamatsu
Discover authentic Japan. Traditional and modern accommodations nationwide. Luxury ryokan with private onsen hot springs, family-run minshuku guesthouses offering local hospitality, spiritual temple shukubo stays with Buddhist vegetarian cuisine, space-saving capsule hotels in urban centers, or western-style business hotels. Explore iconic destinations including Tokyo's Imperial Palace, Kyoto's Fushimi Inari Shrine with its thousand vermilion gates, Osaka Castle and majestic Mount Fuji. Book now
Murao Building 3F, 4F - Vacation STAY 51102v
Takamatsu Tokiwacho 1-6-16 Murao Building 3F, 4F
WiFi
We speak
JA
8.3/10
WiFi
We speak
JA
8.3/10
Situated in Takamatsu, 2.3 km from Liminal Air-core Takamatsu and 2.4 km from Sunport Fountain, Murao Building 3F, 4F - Vacation STAY 51102v offers air conditioning. The property is around 4.3 km from Asahi Green Park, 7.4 km from Yakurishion Christ Church and 7.4 km from Cormorant Shrine. Free WiFi is available throughout the property and Kitahamaebisu Shrine is 1.7 km away.
The accommodation is non-smoking.
Naritasanshodaiji Temple is 7.6 km from the guest house, while Nagasakibana Battery Ruins is 10 km from the property. Takamatsu Airport is 16 km away.
The hotel day starts from hour 16:00 and ends at 10:00.
If you would like a qualified invoice,please contact the property directly.This property will not accommodate hen, stag or similar parties.
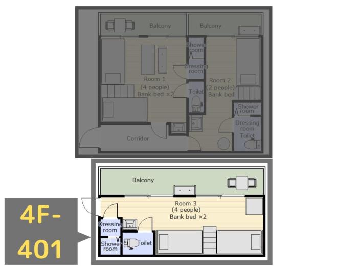
Apartment. Featuring free toiletries, this apartment includes a private bathroom with a shower and a hairdryer. The apartment features air conditioning. The unit has 4 beds.
License number: 高松市指令 保生 第40067号
Process in place to check health of guests
WiFi available in all areas
Property is cleaned by professional cleaning companies
Free WiFi
Guest accommodation is disinfected between stays
Air conditioning
Screens or physical barriers placed between staff and guests in appropriate areas
Physical distancing rules followed
Internet services
Linens, towels and laundry washed in accordance with local authority guidelines
Non-smoking throughout
All plates, cutlery, glasses and other tableware have been sanitized
Guest accommodation sealed after cleaning
WiFi
Shared stationery such as printed menus, magazines, pens, and paper removed
Non-smoking rooms
