HOTEL Japonica - Tokyo
Discover authentic Japan. Traditional and modern accommodations nationwide. Luxury ryokan with private onsen hot springs, family-run minshuku guesthouses offering local hospitality, spiritual temple shukubo stays with Buddhist vegetarian cuisine, space-saving capsule hotels in urban centers, or western-style business hotels. Explore iconic destinations including Tokyo's Imperial Palace, Kyoto's Fushimi Inari Shrine with its thousand vermilion gates, Osaka Castle and majestic Mount Fuji. Book now
HOTEL Japonica
Tokyo Katsushika-ku Tateishi 7-29-9
WiFi
We speak
JA
8.5/10
WiFi
We speak
JA
8.5/10
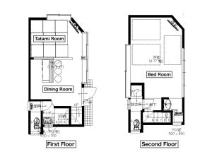
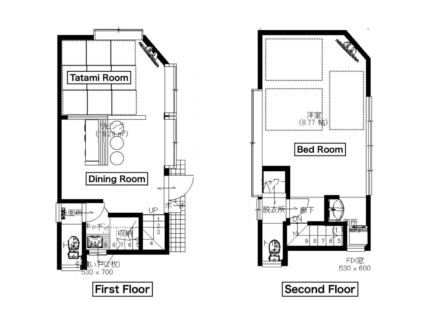
Set in Tokyo, 400 metres from Shoganji Temple and 400 metres from Bronze statue of Genzo Wakabayashi, HOTEL Japonica offers air conditioning. This 1-star holiday home offers free WiFi. The property is non-smoking and is located 1.7 km from Hikifunegawa Water Park.
The holiday home features 1 bedroom, a flat-screen TV with satellite channels, a fully equipped kitchen with a microwave and a fridge, a washing machine, and 1 bathroom with a bidet. Towels and bed linen are featured in the holiday home. For added privacy, the accommodation features a private entrance.
Takaramachi Hachiman Shrine is 2.1 km from the holiday home, while Saikoji Temple is 2.2 km away. Tokyo Haneda Airport is 26 km from the property.
The hotel day starts from hour 15:00 and ends at 10:00.
Please inform in advance of your expected arrival time. You can use the Special Requests box when booking, or contact the property directly with the contact details provided in your confirmation.
Managed by a private host
One-Bedroom House. Boasting a private entrance, this air-conditioned holiday home comes with a kitchen, 1 bedroom and 1 bathroom with a shower and a bidet. Guests can make meals in the kitchen that features a refrigerator, kitchenware and a microwave. The holiday home features a washing machine, tatami, a minibar, a tea and coffee maker, as well as a flat-screen TV with satellite channels. The unit has 2 beds.
License number: 31葛保生環第163号
Air conditioning
Non-smoking throughout
WiFi
Heating
Internet services
Non-smoking rooms
Free WiFi
